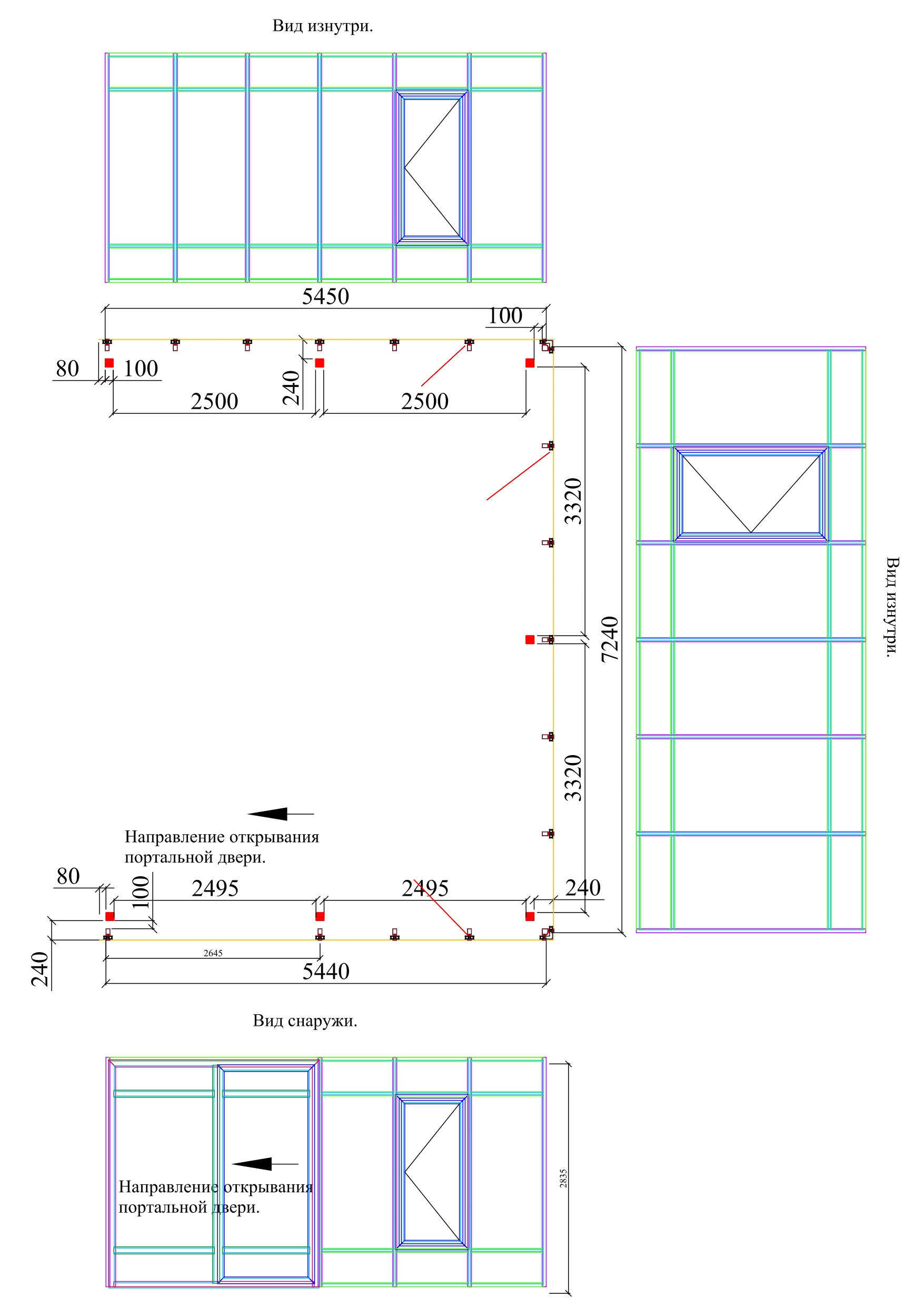
Компания "Окна-Стар" выполнила панорамное остекление веранды загородного дома в коттеджном поселке Крепыш, Одинцовский район.
Панорамные окна в пол выполнены из теплой стоечно-ригельной системы Vidnal F50, установлена алюминиевая портальная наклонно-сдвижная дверь и окна с поворотным открыванием для проветривания.
Такое решение обеспечивает веранду светом и открывает прекрасный обзор для наслаждения природой. В холодное время года тепло сохраняется внутри помещения и обеспечивает комфортную температуру даже зимой.
Обращайтесь в компанию "Окна-Стар", преобразим и ваш загородный дом!



